【兵庫県】工務店の新築平屋間取り21選!
兵庫県を主な施工エリアとしている工務店の新築平屋間取りプランをみてみたい。
今日の記事はこういった疑問に答えます。
本記事では、兵庫県を中心に施工実績のある工務店が提案する、新築平屋間取りプランをご紹介します。
地元密着の工務店なら、その地域にあった気候、風土に合わせた家づくりが可能。
大手ハウスメーカーとは違った魅力のある平屋作りを叶えてくれます。
これから兵庫県で平屋を建てようと検討しているかたは必見です。
こんな疑問をお持ちのかた、多いですよね。
「とりあえず住宅展示場に行ってみよう」もアリですが、展示場の家は豪華すぎてリアルサイズの住宅イメージがつかめないばかりか、平屋のある展示場はほとんどありません。
わざわざ展示場に行かなくても、資料請求サイトを使えば、一度に複数社にカタログ請求が可能。自宅にいながら様々なハウスメーカー・工務店さんの魅力を比較検討できます。
詳細は平屋のカタログを一番簡単に集める方法をご覧ください。
- 【兵庫県】工務店の新築平屋間取り21選!
- 兵庫県を主な施工エリアとしている工務店の2LDK平屋間取り
- 【20坪】泉北ホームさんの平屋【南側全面に広がるアウトドアリビング】
- 【29坪】明治住建さんの平屋【玄関収納から洗面所へアクセス可能】
- 【21坪】Beans Home(ビーンズホーム)さんの平屋【玄関と洗面所を結ぶウォークスルークローゼット】
- 【25坪】ARM(アーム)さんの平屋【キッチン奥の書斎】
- 【16坪】モコハウスさんの平屋「モコベースプラン」【クローゼット付きロフトスペース】
- 【22坪】アルデさんの平屋「S-22」【2帖の納戸があるシンプル2LDK】
- 【15坪】タツノコホームさんの平屋【必要十分な機能を持つ970万円のローコスト住宅】
- 【42坪】ライフデザイン・カバヤさんの「自然と繋がる憩いの平屋」【南北採光の開放的LDK】
- 【31坪】ホンカさんの平屋「トゥルスク 」【フィンランド式サウナ付き】
- 【23坪】アーキホームライフさんの平屋【引き戸を開ければLDKとつながる和室】
- 兵庫県を主な施工エリアとしている工務店の3LDK平屋間取り
- 【31坪】セセラの家さんの平屋【4つのウォークインクローゼット+ランドリールーム】
- 小林住宅さんの「ワンフロアの生活 平屋タイプ」【中央にあるファミリークローゼットとランドリールーム】
- 【35坪】エソラさんの平屋【中庭+ウッドデッキのある庭】
- 【24坪】カーザロボティクスさんの平屋「IKI」【シンプル超ローコスト!】
- 【33坪】ヤマト住建さん平屋「中庭のある家」【ゾーニングも素晴らしいパティオの平屋】
- 【26坪】アイデザインホームさんの平屋「暮らしやすさとデザインを両立したフラットフロアの家」【便利なリビング収納】
- 【30坪】エイ・ワンホームさんの「ランドリー付き回遊動線の平屋」【ガス乾燥機付きランドリールーム】
- ビーバーハウスさんの平屋「MODELHOUSE 105」【ウォークスルー洗面脱衣所と可動式収納】
- 兵庫県を主な施工エリアとしている工務店の4LDK平屋間取り
- 兵庫県のそのほかの工務店さん一覧
- 関連記事
【兵庫県】工務店の新築平屋間取り21選!
さっそく、兵庫県を主な施工エリアとしている工務店が提案する平屋間取りプランをご紹介していきます。
兵庫県を主な施工エリアとしている工務店の2LDK平屋間取り
兵庫県を主な施工エリアとしている工務店が提案する、2LDKの平屋間取りをご紹介します。
【20坪】泉北ホームさんの平屋【南側全面に広がるアウトドアリビング】
![]()
![]()
出典:泉北ホームさんの平屋ウェブサイト
泉北ホームさんの平屋をご紹介します。
- 2LDK
- 延床面積20坪台
- 長方形
- 西玄関
- ウッドデッキ
- ローコスト
シンプルで無駄のない2LDK平屋住宅です。
LDK西側の個室の扉は引き戸で、開け放てばLDKを拡張して使うことが可能。
子どもが巣立ったあとなどに、夫婦でLDKを広く使いたい場合には非常に便利な仕掛けとなっています。
南側全面に広がるテラスはアウトドアリビングとして活用でき、開放感抜群です。
建物本体価格1,622万円(税込)で建てられる点も魅力的な平屋間取りとなっています。
詳細は【20坪】泉北ホームさんの平屋 間取りおすすめポイント【南側全面に広がるアウトドアリビング】で解説しています。
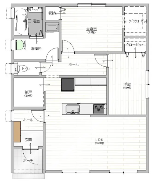
【29坪】明治住建さんの平屋【玄関収納から洗面所へアクセス可能】
![]()
![]()
出典:明治住建さんの平屋ウェブサイト
明治住建さんの平屋をご紹介します。
- 2LDK
- 延床面積20坪台
- L字形
- 南玄関
- 玄関収納
- ロフト(小屋裏収納)
- ウォークスルークローゼット
- ウォークインクローゼット
- 洗面所と脱衣所が別々に分かれている
水回りと収納の動線が秀逸な平屋住宅です。
玄関正面の玄関収納は、そのまま洗面所を抜けられるウォークスルー構造。
コートなどの上着を玄関収納で脱いで、そのまま手洗いへ進める動線の良さが魅力的です。
勾配天井を生かした広大なロフトスペースが備わっており、来客用の寝室や、子どもの遊びスペースとしても利用可能です。
詳細は【29坪】明治住建さんの平屋 間取りおすすめポイント【玄関収納から洗面所へアクセス可能】で解説しています。
【21坪】Beans Home(ビーンズホーム)さんの平屋【玄関と洗面所を結ぶウォークスルークローゼット】
![]()
![]()
出典:Beans Home(ビーンズホーム)さんの平屋ウェブサイト
Beans Home(ビーンズホーム)さんの平屋をご紹介します。
- 2LDK
- 延床面積20坪台
- コの字
- 北玄関
- ウォークスルークローゼット
- 洗面所と脱衣所が別々に分かれている
便利な場所にウォークスルークローゼットのある2LDK平屋住宅です。
ウォークスルークローゼットは、玄関ホールと洗面所の間に配置されています。
脱衣所は部屋干しも可能なスペースがあるため、脱衣所で洗濯、物干しを行い、乾いた洗濯ものはそのままウォークスルークローゼットへ収納できます。
また、玄関からもアクセス可能ということで、朝の身支度にも最高の使い勝手を発揮。
洗濯と身支度の動線が非常にスムーズに流れる平屋間取りとなっています。
詳細は【21坪】Beans Home(ビーンズホーム)さんの平屋 間取りおすすめポイント【玄関と洗面所を結ぶウォークスルークローゼット】で解説しています。
【25坪】ARM(アーム)さんの平屋【キッチン奥の書斎】
![]()
![]()
出典:アーム(ARM)さんの平屋ウェブサイト
アーム(ARM)さんの平屋をご紹介します。
- 2LDK
- 延床面積20坪台
- 長方形
- 南玄関
- ウォークスルークローゼット
- サンルーム
- 書斎
- 玄関収納
25坪とコンパクトながら機能性にあふれた平屋住宅です。
キッチンの奥に書斎を備えています。キッチンの奥なので、料理をしながら、あいまで別の作業をしたい場合などに重宝します。
また、書斎でパソコン仕事などをして、休憩のコーヒーを入れに行くにも絶好のポジションです。
洗面室の隣にサンルーム、さらにはサンルームの奥にウォークスルークローゼットがあるため、洗濯動線が最短距離で完了。
ウォークスルークローゼットのため主寝室側からもアクセスできる便利さも併せ持っています。
詳細は【25坪】ARM(アーム)さんの平屋 間取りおすすめポイント【キッチン奥の書斎】で解説しています。
【16坪】モコハウスさんの平屋「モコベースプラン」【クローゼット付きロフトスペース】
![]()
![]()
![]()
出典:モコハウスさんの平屋「モコベースプラン」ウェブサイト
モコハウスさんの平屋「モコベースプラン」をご紹介します。
- 2LDK(1LDK+ロフト)
- 延床面積10坪台(ロフトを含めると25坪)
- 長方形
- 北玄関
- ウォークインクローゼット
- ロフト
- 洗面所と脱衣所が別々に分かれている
ロフトを含めないと16坪という非常にコンパクトな平屋住宅です。
片流れ屋根の高い天井を生かしたロフトスペースにはクローゼットも備わっており、平屋を拡張したゆとりの空間を実現。
また、建物本体価格1,960万円という2,000万円を切るローコストで建てられる点も見逃せません。
コンパクト、ローコストながら洗面所と脱衣所が別々に分かれているなど、機能面にも十分に配慮された平屋間取りとなっています。
詳細は【16坪】モコハウスさんの平屋「モコベースプラン」 間取りおすすめポイント【クローゼット付きロフトスペース】で解説しています。
【22坪】アルデさんの平屋「S-22」【2帖の納戸があるシンプル2LDK】
![]()
![]()
出典:アルデさんの平屋ウェブサイト
アルデさんの平屋をご紹介します。
- 2LDK
- 延床面積20坪台
- 長方形
- 南玄関
- ウォークインクローゼット
- パントリー
- ローコスト
2LDKのシンプルな平屋住宅です。
寝室のウォークスルークローゼットに加えて、キッチンとなりに2帖の大きな納戸収納スペースがあります。
納戸は、主にパントリーとして利用できることはもちろんのこと、掃除道具や消耗品など、様々なものを便利に収納できる万能な収納スペース。
建物価格1,410万円(税別)というコーコストで建てられる点も大変魅力的な平屋間取りとなっています。
詳細は【22坪】アルデさんの平屋「S-22」間取りおすすめポイント【2帖の納戸があるシンプル2LDK】で解説しています。
【15坪】タツノコホームさんの平屋【必要十分な機能を持つ970万円のローコスト住宅】
![]()
![]()
出典:タツノコホームさんの平屋ウェブサイト
タツノコホームさんの平屋をご紹介します。
- 2LDK
- 延床面積10坪台
- 長方形
- 西玄関
- ローコスト
税込み価格1,068万円というローコスト平屋住宅です。
15坪と非常にコンパクトな面積ながら、2LDKの間取りを確保。
コストをかけないで戸建て平屋を建てて、ミニマムな暮らしを実現したいかたにぴったりの平屋間取りとなっています。
詳細は【15坪】タツノコホームさんの平屋 間取りおすすめポイント【必要十分な機能を持つ970万円のローコスト住宅】で解説しています。
【42坪】ライフデザイン・カバヤさんの「自然と繋がる憩いの平屋」【南北採光の開放的LDK】
![]()
![]()
出典:ライフデザイン・カバヤさんの「自然と繋がる憩いの平屋」ウェブサイト
ライフデザイン・カバヤさんの「自然と繋がる憩いの平屋」をご紹介します。
- 2LDK
- 延床面積40坪台
- 長方形
- 南玄関
- 和室あり
- 書斎あり
- アイランドキッチンあり
南北の2面採光で明るいLDKをもつ平屋住宅です。
垂木現しの勾配天井も開放感抜群です。
書斎や和室も完備していて、LDKの美しさだけでなく、機能性にも優れている平屋間取りとなっています。
詳細はライフデザイン・カバヤさんの「自然と繋がる憩いの平屋」間取りおすすめポイント【南北採光の開放的LDK】で解説しています。
【31坪】ホンカさんの平屋「トゥルスク 」【フィンランド式サウナ付き】
![]()
![]()
![]()
出典:ホンカさんの平屋「トゥルスク 」ウェブサイト
ホンカさんの平屋「トゥルスク 」をご紹介します。
シンプルな切妻屋根の長方形の平屋です。
一番のユニークポイントは「サウナがある」という点です。
フィンランド式サウナを浴室の隣に備えていて、毎日自宅で思う存分サウナを楽しむことができます。
切妻屋根の広大な屋根裏を活かしたロフトスペース、大型のパントリーなど収納スペースも充実。
調湿効果のある天然木を使った木の家は、サウナとの相乗効果で、家族が末永く健康に暮らせる平屋住宅となっています。
詳細はホンカさんの平屋「トゥルスク 」間取りおすすめポイント【フィンランド式サウナ付き】で解説しています。
【23坪】アーキホームライフさんの平屋【引き戸を開ければLDKとつながる和室】
![]()
![]()
出典:アーキホームライフさんの平屋ウェブサイト
アーキホームライフさんの平屋をご紹介します。
- 2LDK
- 延床面積20坪台
- 北玄関
- 玄関収納
- 和室
23坪の2LDK平屋住宅です。
玄関入って左には大きな玄関収納があります。
靴のほか、アウトドア、スポーツ用品なども収納できそうな広さが魅力的です。
ダイニングスペースの奥側には造り付けのテーブルがあり、食事はもちろんのこと、簡易的なスタディコーナーとしても活用できそうです。
リビングと和室は引き戸でつながっていて、和室の引き戸をあければ大空間が広がります。
詳細は【23坪】アーキホームライフさんの平屋 間取りおすすめポイント【引き戸を開ければLDKとつながる和室】で解説しています。
こんな疑問をお持ちのかた、多いですよね。
「とりあえず住宅展示場に行ってみよう」もアリですが、展示場の家は豪華すぎてリアルサイズの住宅イメージがつかめないばかりか、平屋のある展示場はほとんどありません。
わざわざ展示場に行かなくても、資料請求サイトを使えば、一度に複数社にカタログ請求が可能。自宅にいながら様々なハウスメーカー・工務店さんの魅力を比較検討できます。
詳細は平屋のカタログを一番簡単に集める方法をご覧ください。
兵庫県を主な施工エリアとしている工務店の3LDK平屋間取り
兵庫県を主な施工エリアとしている工務店が提案する、3LDKの平屋間取りをご紹介します。
【31坪】セセラの家さんの平屋【4つのウォークインクローゼット+ランドリールーム】
![]()
出典:セセラの家さんの平屋ウェブサイト
セセラの家さんの平屋をご紹介します。
- 3LDK
- 延床面積30坪台
- 南玄関
- 玄関収納あり
- 子ども部屋が最初から間仕切りされている
- 主寝室と子ども部屋が離れている
- ウォークインクローゼット
- ランドリールーム
- 洗面所と脱衣場が別々に分かれている
- ウッドデッキあり
ウォークインクローゼットを4つも備えた収納豊富な31坪の平屋住宅です。
ホシ姫サマのある室内物干しにも対応可能なランドリールーム。
さらにランドリールームのすぐ隣にはファミリークローゼットも完備。
洗濯時の移動距離が最短で済み、作業負荷を大幅に軽減してくれます。
ランドリールームからは独立した洗面所もあり、水回りの機能が充実した平屋間取りとなっています。
小林住宅さんの「ワンフロアの生活 平屋タイプ」【中央にあるファミリークローゼットとランドリールーム】
![]()
![]()
出典:小林住宅さんの「ワンフロアの生活 平屋タイプ」ウェブサイト
小林住宅さんの「ワンフロアの生活 平屋タイプ」をご紹介します。
家の中央に大きなファミリークローゼットとランドリールームを持つ平屋住宅です。
ランドリールームは物干し竿3本が縦に下がる広さで、家族全員の洗濯物を余裕を持って干せます。
乾いた洗濯物は隣のファミリークローゼットにすぐに運び込めて、移動距離も最短です。
ファミリークローゼットはウォークスルータイプのため、脱衣所、ランドリールーム、玄関の3か所からアクセス可能。
洗う、干す、しまう、着るといった、衣類に関するすべての要望をスマートに叶えてくれます。
詳細は小林住宅さんの「ワンフロアの生活 平屋タイプ」間取りおすすめポイント【中央にあるファミリークローゼットとランドリールーム】で解説しています。
【35坪】エソラさんの平屋【中庭+ウッドデッキのある庭】
出典:エソラさんの平屋ウェブサイト
エソラさんの平屋をご紹介します。
- 3LDK
- 延床面積30坪台
- 中庭(コの字)
- 北玄関
- 子ども部屋が最初から間仕切りされている
- ウッドデッキあり
中庭のあるコの字型の平屋住宅です。
リビングの東側の中庭と、ウッドデッキもある南側の庭。
ふたつの表情が違う庭を堪能できる豊かな平屋間取りとなっています。
【24坪】カーザロボティクスさんの平屋「IKI」【シンプル超ローコスト!】
![]()
出典:カーザロボティクスさんの平屋「IKI」ウェブサイト
カーザロボティクスさんが展開している平屋住宅「IKI」の中から、24坪3LDKプランをご紹介します。
- 3LDK
- 延床面積20坪台
- 玄関収納
- 和室
- スタディコーナー
- ロフト
- ウッドデッキ
「IKI」は、「シンプルさを究めた超ローコスト平屋」です。
これだけローコストで機能充実なら、もう戸建ては平屋一択でもOKと思わせる魅力にあふれています。
詳細はカーザロボティクスさんの平屋「IKI」間取り5つのおすすめポイント【シンプル超ローコストな3LDK注文住宅】で解説しています。
【33坪】ヤマト住建さん平屋「中庭のある家」【ゾーニングも素晴らしいパティオの平屋】
![]()
![]()
出典:ヤマト住建さんの「中庭のある家」ウェブサイト
ヤマト住建さんの「中庭のある家」をご紹介します。
結論から言うと、「ゾーニングも素晴らしい中庭のある平屋住宅」でした。
- プライベートな中庭空間
- 中庭を間に挟んだ絶妙なゾーン分離
中庭が実はLDK水回りと個室を分ける役目も果たしている、とても機能的な平屋です。
詳細は【33坪】ヤマト住建さんの平屋「中庭のある家」間取り2つのおすすめポイント【ゾーニングが素晴らしいおしゃれなパティオ付き】で解説しています。
【26坪】アイデザインホームさんの平屋「暮らしやすさとデザインを両立したフラットフロアの家」【便利なリビング収納】
![]()
![]()
出典:アイデザインホームさんの平屋「暮らしやすさとデザインを両立したフラットフロアの家」ウェブサイト
アイデザインホームさんの平屋「暮らしやすさとデザインを両立したフラットフロアの家」をご紹介します。
- 3LDK
- 延床面積20坪台
- 正方形
- 南玄関
- 玄関収納あり
- リビング収納あり
- 子ども部屋が最初から間仕切りされている
- 洗面所と脱衣所が別々に分かれている
正方形、LDKの南にオープンなテラスが広がる平屋です。
テラスの脇のちょっとしたスペースに、便利なリビング収納を完備。
LDKが散らかるのを防いでくれる魔法の収納スペースとして活躍します。
詳細は【26坪】アイデザインホームさんの平屋「暮らしやすさとデザインを両立したフラットフロアの家」間取りおすすめポイント【便利なリビング収納】で解説しています。
【30坪】エイ・ワンホームさんの「ランドリー付き回遊動線の平屋」【ガス乾燥機付きランドリールーム】
![]()
![]()
出典:エイワンホームさんの「ランドリー付き回遊動線の平屋」ウェブサイト
エイワンホームさんの「ランドリー付き回遊動線の平屋」をご紹介します。
エイワンホームさんの「ランドリー付き回遊動線の平屋」の特性
- 3LDK
- 延床面積30坪台
- 西玄関
- ランドリールームあり
- 洗面所と脱衣所が別々に分かれている
- 子ども部屋をあとから間仕切りできる
- 玄関収納あり
- 回遊動線
脱衣室と別の独立したランドリールームを持つ平屋住宅です。
ガス乾燥機を使って洗濯物を乾かすことが最初から想定されています。
ランドリールームを出てすぐのところにファミリークロークもあり、最短距離で洗濯が片付く家事楽な平屋間取りとなっています。
キッチンを中心としてグルっと回れる回遊動線になっている点もユニークなポイントです。
詳細はエイワンホームさんの「ランドリー付き回遊動線の平屋」間取りおすすめポイント【ガス乾燥機付きランドリールーム】で解説しています。
ビーバーハウスさんの平屋「MODELHOUSE 105」【ウォークスルー洗面脱衣所と可動式収納】
![]()
![]()
出典:ビーバーハウスさんの平屋「MODELHOUSE 105」ウェブサイト
ビーバーハウスさんの平屋「MODELHOUSE 105」をご紹介します。
勾配天井の外観が目を引く平屋住宅です。
LDKを中心に、主寝室、子ども部屋、洗面脱衣所、トイレをグルッと回れる回遊動線が特徴的。
洗面脱衣所は玄関側とキッチン側の両方から入れるウォークスルータイプとなっており、買い物動線、家事動線の効率化の要となっています。
子ども部屋は「可動式収納」を用いてレイアウトを自在に変更でき、柔軟性の高い平屋間取りを実現しています。
詳細はビーバーハウスさんの平屋「MODELHOUSE 105」間取り2つのおすすめポイント【ウォークスルー洗面脱衣所と可動式収納】で解説しています。
こんな疑問をお持ちのかた、多いですよね。
「とりあえず住宅展示場に行ってみよう」もアリですが、展示場の家は豪華すぎてリアルサイズの住宅イメージがつかめないばかりか、平屋のある展示場はほとんどありません。
わざわざ展示場に行かなくても、資料請求サイトを使えば、一度に複数社にカタログ請求が可能。自宅にいながら様々なハウスメーカー・工務店さんの魅力を比較検討できます。
詳細は平屋のカタログを一番簡単に集める方法をご覧ください。
兵庫県を主な施工エリアとしている工務店の4LDK平屋間取り
兵庫県を主な施工エリアとしている工務店が提案する、4LDKの平屋間取りをご紹介します。
アトリエツバキ一級建築士事務所さんの平屋【防音室シアタールーム】
![]()
![]()
出典:アトリエツバキ 一級建築士事務所さんの平屋ウェブサイト
アトリエツバキ 一級建築士事務所さんの平屋をご紹介します。
- 4LDK
- 南玄関
- 玄関収納あり
- 子ども部屋が最初から間仕切りされている
- ウォークインクローゼット
- 洗面所と脱衣所が別々に分かれている
- ウッドデッキ
非常に特徴的な「防音室」がある平屋住宅。
主な利用用途は「シアタールーム」となっていて、大音量で映画を楽しむのに最適な空間です。
また、防音室のため、楽器演奏にももちろん対応します。
ピアノ、ギター、ドラムの練習など、音楽が趣味のかたにとって最高の平屋間取りとなっています。
【28坪】AGENG HOUSE(エイジングハウス)さんの平屋【ウォークスルーリビング収納の回遊動線】
![]()
![]()
出典:AGENG HOUSE(エイジングハウス)さんウェブサイト
AGENG HOUSE(エイジングハウス)さんの平屋をご紹介します。
- 4LDK
- 延床面積20坪台
- 中庭(コの字)
- 西玄関
- 玄関収納あり
- 子ども部屋が最初から間仕切りされている
- 子ども部屋に収納がない
- ウォークスルークローゼットあり
- リビング収納あり
- ロフト
- 洗面所と脱衣場が別々に分かれている
- 回遊動線
中庭もあるコの字型の平屋住宅です。
特徴的なのはリビングのテレビ裏のウォークスルークローゼット。
ファミリークローゼットとして使うのに十分な広さがあります。
また、ウォークスルー構造なので、回遊動線の実現にも一役買っています。
2つの子ども部屋に収納スペースはありませんが、ウォークスルークローゼットと、固定階段でのぼれる大容量のロフトがあるため、収納不足とは無縁。
オープンで使いやすい独立した洗面所があるなど、機能面でも優れている平屋間取りとなっています。
【32坪】ジブンハウスさんの平屋「1211F SCANDIA」【高いデザインと低コストを両立!】
![]()
![]()
出典:ジブンハウスさんの平屋住宅「1211F SCANDIA」ウェブサイト
ジブンハウスさんの平屋住宅「1211F SCANDIA」をご紹介します。
結論から言うと、「デザイン性が高いバランスの取れた平屋住宅」でした。
- 大きなシューズクローク
- 理想的なトイレの配置
- 収納を備えた寝室、和室、子ども部屋
- 作業スペースの広い対面式I型キッチン
- ゆったりとくつろげるウッドデッキ
住む人を選ばない、かつ、高いデザイン性と低コストを両立した平屋住宅です。
2階建てしか考えていなかった人も、みれば建てたくなるような平屋かも。。。
詳細はジブンハウスさんの平屋「1211F SCANDIA」間取り5つのおすすめポイント【高いデザインと低コストを両立した4LDK注文住宅】で解説しています。
こんな疑問をお持ちのかた、多いですよね。
「とりあえず住宅展示場に行ってみよう」もアリですが、展示場の家は豪華すぎてリアルサイズの住宅イメージがつかめないばかりか、平屋のある展示場はほとんどありません。
わざわざ展示場に行かなくても、資料請求サイトを使えば、一度に複数社にカタログ請求が可能。自宅にいながら様々なハウスメーカー・工務店さんの魅力を比較検討できます。
詳細は平屋のカタログを一番簡単に集める方法をご覧ください。
兵庫県のそのほかの工務店さん一覧
下記は、間取りプランの掲載がなく、本記事でご紹介できなかった兵庫県で施工実績のある工務店さんの一覧です。
- フクダ・ロングライフデザインさん
- グランリビングさん
- コーヨーテックさん
- 新栄建設さん
- アイディールホームさん
- RIPAROさん
- 福山住宅さん
- 前川建設さん
- じょぶさん
- あんじゅホームさん
- タイコーアーキテクトさん
- ゆめすみかさん
- 住空間設計Laboさん
- 夢ハウスさん
- 上野工務店さん
- サイエンスLDホームさん
- ユーロプランニングさん
- ひかり工務店さん
- Gハウスさんさん
- パルステージさん
- 夢工房さん
- ハナハウスさん
- 野村工務店さん
- フレンチ工房さん
- はだしの家さん
- 松下工務店さん
- 田原建設さん
- アトラクト設計工務さん
- femさん
- 中居工務店さん
- オリエントホームさん
- 高翔さん
- Ideal Homeさん
- ワイズシステムさん
- メープルホームズインターナショナルさん
- さくら不動産さん
- シエナホームさん
- 椎葉工務店さん
- モレスの家さん
- 十津川の家さん
- アール・ホームさん
- エフイーホームさん
- kicoriさん
- 建築工房さん
- かみえ工務店さん
- テクノ住研さん
- 川口建設さん
- フロックスさん
- 洛斗コーポレーションさん
- アーバンプランニングさん
さらに、LIFULL HOME’Sも使えば、兵庫県で施工可能な大手ハウスメーカーのカタログも一括で取り寄せることができます。
わざわざ住宅展示場に足を運ばなくてもよい点がメリット大です。
SUUMO、LIFULL HOME’Sでカタログを取り寄せる手順の詳細は、平屋のカタログを一番簡単に集める方法で解説しています。
関連記事
本日も最後までお読みいただきありがとうございました。
みなさんの後悔のない家づくりの参考になれば幸いです。
これから家を建てるなら、フラットで移動や掃除がラク、子供が巣立ったあとも2階が無駄にならない平屋がおすすめです。
平屋のデメリット、2階建てとの価格の違いや、失敗しない間取りの作り方などを平屋を建てる7つのメリット【2つのデメリット・間取りの作り方も解説】にまとめました。












