【20坪】泉北ホームさんの平屋 間取りおすすめポイント【南側全面に広がるアウトドアリビング】
今日の記事はこういった疑問に答えます。
実際に平屋を建てた私が、泉北ホームさんの平屋 の間取りを中心にチェックしてみました。
結論から言うと、「南側に広がるアウトドアリビングが気持ちいい、開放感あふれる平屋住宅」でした。
泉北ホームさんの平屋 のおすすめ間取りポイントは下記になります。
これから平屋を建てる予定のかたは、事例のひとつとしてぜひ参考にしてみてください。
こんな疑問をお持ちのかた、多いですよね。
「とりあえず住宅展示場に行ってみよう」もアリですが、展示場の家は豪華すぎてリアルサイズの住宅イメージがつかめないばかりか、平屋のある展示場はほとんどありません。
わざわざ展示場に行かなくても、資料請求サイトを使えば、一度に複数社にカタログ請求が可能。自宅にいながら様々なハウスメーカー・工務店さんの魅力を比較検討できます。
詳細は平屋のカタログを一番簡単に集める方法をご覧ください。
泉北ホームさんの平屋 の外観と間取り図
泉北ホームさんの平屋 の外観と間取り図をご紹介します。
![]()
![]()
出典:泉北ホームさんの平屋ウェブサイト
泉北ホームさんの平屋 の特性は以下のとおりです。
- 2LDK
- 延床面積20坪台
- 長方形
- 西玄関
- ウッドデッキ
- ローコスト
泉北ホームさんの平屋の気になる間取りおすすめポイントをチェック!
泉北ホームさんの平屋の気になる間取りをピックアップ。
南側全面に広がるアウトドアリビング
![]()
出典:泉北ホームさんの平屋ウェブサイト
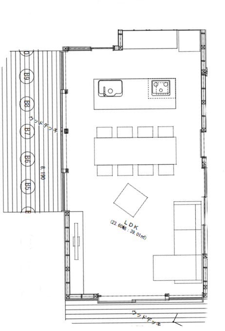
泉北ホームさんの平屋 は、間取りとしてはとてもシンプルです。
長方形のカタチに、必要最小限の機能がしっかりと組み込まれた平屋です。
しかし南側の開放感は相当なもので、大きな窓と、長いウッドデッキが広がっています。
リビングの外、南側はすべてウッドデッキということで、リビングをそのまま拡張する役割をウッドデッキが果たします。
LDKは15.7帖、ということで20坪の平屋としては標準的かやや広いくらいです。
しかし、晴れた日などはLDKの窓を開け放つと、ウッドデッキ部分が加わった「アウトドアリビング」が出現。
20帖以上に感じられる広大なスペースを体験できます。
ウッドデッキの先で遊ぶ子供をみながら、親はLDKでくつろいだり、料理をしたり、なんてシチュエーションが目に浮かびますね。
そんなに大きな面積の平屋は予算的に建てられそうにない・・・、狭く感じないだろうか・・・と心配になるかたもいるでしょう。
我が家もウッドデッキあり。庭遊びの時は楽しい空間です。
我が家のリビングは南と西にウッドデッキを作りました。
とくに南側のウッドデッキは庭とつながっているので、外遊びをするときに効果絶大。
飲み物をおいておく、子どもが遊んでいるのをウッドデッキでくつろぎながら眺める、といった用途に使え、空間の豊かさを何倍にもしてくれています。
また、物を干す場合にも便利で、しばらく開けていなかったスーツケースや、ふとんを外干ししたいときなどにも重宝します。
LDKからそのまま外へでて、ウッドデッキに物を干す、という動線は想像以上に便利でした。
リビングから段差のない空間があるのは、なにかと便利だと実感します。
我が家のウッドデッキは再生木を使ったので、朽ちることもなく、キレイな状態を長期間キープしてくれています。
初期投資は確かにかかりましたが、木が腐ってしまうリスクを考えると非常によい投資でした。
せっかく外とのつながりが造りやすい平屋を建てるなら、ウッドデッキによるアウトドアリビング的な使い方はぜひ検討してもらいたいです。
泉北ホームさんの間取り以外の特徴
泉北ホームさんの間取り以外の特徴をご紹介します。
自社一貫施工の家
![]()
出典:泉北ホームさんの平屋ウェブサイト
泉北ホームさんの平屋 は、ローコストにもこだわりがあります。
ローコスト化を支えているのが、自社一貫施工を行っている点です。
住宅工事を外注しないで、自社ですべてまかなうことを基本にしています。
- コストコントロールがしやすい
- 外部要因の変化にふりまわされにくい
- 中間マージンも発生しない
といった、コスト管理上のメリットが多数あります。
余計なマージンを削った分は、そのまま施主さんに還元。
結果的に、ローコストでも良質な家を建築可能となっています。
家づくりそのものにできるだけお金をかけたいと考えているなら、泉北ホームさんであれば無駄なコストを感じることなく本質的な家づくりに集中できるはずです。
【まとめ】アウトドアリビングで面積以上の広さを感じる平屋住宅
泉北ホームさんの平屋 の気になる間取りのポイントをチェックしてみました。
以上をまとめると、泉北ホームさんの平屋 は、特に以下のかたにおすすめです!
- 延床面積はあまり広くできないが、開放感はある平屋を建てたい。
- ウッドデッキ部分を広くとって、庭を楽しむ時間をたくさん作りたい。
- できるだけ無駄なコストは省いて、ローコストで良質な平屋を建てたい。
泉北ホームさんの平屋は、20坪で16帖に満たないリビングとは思えないほど、外とのつながりと開放感を感じることのできる平屋住宅でした。
こんな疑問をお持ちのかた、多いですよね。
「とりあえず住宅展示場に行ってみよう」もアリですが、展示場の家は豪華すぎてリアルサイズの住宅イメージがつかめないばかりか、平屋のある展示場はほとんどありません。
わざわざ展示場に行かなくても、資料請求サイトを使えば、一度に複数社にカタログ請求が可能。自宅にいながら様々なハウスメーカー・工務店さんの魅力を比較検討できます。
詳細は平屋のカタログを一番簡単に集める方法をご覧ください。
関連記事
- 平屋のカタログを一番簡単に集める方法
- 平屋を建てる7つのメリット【2つのデメリット・間取りの具体例と作り方も解説】
- 平屋の資料請求サイト5選!【平屋カタログの集め方を徹底解説!】
- 平屋間取り図276選!【ハウスメーカー・工務店266社】
- 2LDKの平屋間取り図73選!【夫婦二人にぴったりな家】
- 【20坪台】平屋間取り図133選!【老後も安心なシンプル設計】
- 【20坪台】西玄関の平屋間取り図21選!
- 【20坪台】長方形の平屋間取り図51選!
- 西玄関の平屋間取り図37選!【風水的にはNGでも実はメリット大】
- 【20坪台】長方形の平屋間取り図51選!
- ウッドデッキ・縁側のある平屋間取り図103選!【おしゃれ・洗濯物干しなどメリット多数】
- ローコスト平屋の間取り図39選!【2LDK・3LDK・4LDKを網羅】
- 【兵庫県】工務店の新築平屋間取り21選!
- 【滋賀県】工務店の新築平屋間取り20選!
本日も最後までお読みいただきありがとうございました。
みなさんの後悔のない家づくりの参考になれば幸いです。
これから家を建てるなら、フラットで移動や掃除がラク、子供が巣立ったあとも2階が無駄にならない平屋がおすすめです。
平屋のデメリット、2階建てとの価格の違いや、失敗しない間取りの作り方などを平屋を建てる7つのメリット【2つのデメリット・間取りの作り方も解説】にまとめました。




