【25坪】ARM(アーム)さんの平屋 間取りおすすめポイント【キッチン奥の書斎】
今日の記事はこういった疑問に答えます。
実際に平屋を建てた私が、ARM(アーム)さんの平屋の間取りを中心にチェックしてみました。
結論から言うと、「キッチン奥に便利な書斎のある平屋住宅」でした。
ARM(アーム)さんの平屋のおすすめ間取りポイントは下記になります。
これから平屋を建てる予定のかたは、事例のひとつとしてぜひ参考にしてみてください。
こんな疑問をお持ちのかた、多いですよね。
「とりあえず住宅展示場に行ってみよう」もアリですが、展示場の家は豪華すぎてリアルサイズの住宅イメージがつかめないばかりか、平屋のある展示場はほとんどありません。
わざわざ展示場に行かなくても、資料請求サイトを使えば、一度に複数社にカタログ請求が可能。自宅にいながら様々なハウスメーカー・工務店さんの魅力を比較検討できます。
詳細は平屋のカタログを一番簡単に集める方法をご覧ください。
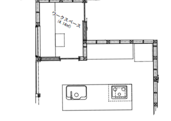
ARM(アーム)さんの平屋の外観と間取り図
ARM(アーム)さんの平屋の外観と間取り図をご紹介します。
![]()
![]()
出典:アーム(ARM)さんの平屋ウェブサイト
ARM(アーム)さんの平屋の特性は以下のとおりです。
- 2LDK
- 延床面積20坪台
- 長方形
- 南玄関
- ウォークスルークローゼット
- サンルーム
- 書斎
- 玄関収納
ARM(アーム)さんの平屋の気になる間取りおすすめポイントをチェック!
ARM(アーム)さんの平屋の気になる間取りをピックアップ。
キッチン奥の書斎
![]()
出典:アーム(ARM)さんの平屋ウェブサイト
ARM(アーム)さんの平屋は、機能性抜群な2LDK平屋です。
一番特徴的なのはキッチン奥。
パントリー?かと思いきや、そこには書斎がひろがっています。
キッチンの近くに書斎があると、何かと便利。
たとえば休日に料理をしながら、ちょっと待ち時間ができたら書斎で休憩&パソコンで作業したりできます。
コーヒーなどを飲みながら、在宅勤務などをする場合にも、書斎から数歩でキッチンに行き、飲み物を入れることができます。
冷蔵庫もすぐ近くにあるので、冷たい飲み物や、デザート、果物などを取りに行くもラクラクです。
実は、キッチンと書斎、というのは、想像以上に相性が良い組み合わせなのです。
アーム(ARM)さんの平屋はほかにも、洗面脱衣室の隣にサンルームが配置されていて、洗濯がものすごく便利だったり、サンルームと主寝室の間にはウォークスルー可能なクローゼットを備えているなど、書斎以外にも機能性抜群。
我が家もキッチンの隣が書斎で快適!
我が家も、アーム(ARM)さんの平屋同様に、キッチンの奥に書斎を備えています。
この配置がめちゃくちゃ便利!
お湯を沸かして熱いコーヒーを入れたり、冷蔵庫から冷えた飲み物を取ってきたり。
書斎からキッチンが遠かったら、かなり面倒だったと思います。
キッチンが隣なのでストレスフリーで飲み物、食べ物を取りに行けるのは、想定していた以上に実際は便利なものです!
私の経験からも、キッチンの隣の書斎は絶対的にオススメします。
ARM(アーム)さんの間取り以外の特徴
ARM(アーム)の間取り以外の特徴をご紹介します。
全棟気密測定(C値0.49以下)
![]()
出典:アーム(ARM)さんの平屋ウェブサイト
ARMさんの平屋は性能にも妥協がありません。
昨今の住宅の最も重要な指標と言っても過言ではない、気密性の高さ。
ARMさんは全棟気密測定を実施して、性能をきちんと「見える化」して施主さんに教えてくれます。
値についてもC値0.49以下を実現。
ほぼ隙間風の入らない、非常に気密性の高い家を建ててくれます。
冷暖房費の削減にも大きな効果を発揮するのが気密性の高さ。
我が家のC値は0.8。ARMさんの平屋よりは劣りますが、隙間風が入らない恩恵はじゅうぶんすぎるほど実感しています。
C値0.49以下を実現してくれるARMさんの平屋なら、暑い夏も寒い冬も快適に暮らせること間違いなしです!
【まとめ】キッチン奥の書斎、サンルームもある機能性豊富な平屋住宅
ARM(アーム)さんの平屋の気になる間取りのポイントをチェックしてみました。
以上をまとめると、ARM(アーム)さんの平屋は、特に以下のかたにおすすめです!
- 書斎で作業する際に、飲み物、食べ物を取りにいきやすい構造がよい。
- 便利な洗濯動線を備えた平屋が良い。できたらサンルームが欲しい。
- 気密性が高く、冷暖房の効きがよく、光熱費も抑えられる平屋を建てたい。
ARM(アーム)さんの平屋は、キッチン奥の快適な書斎、洗濯動線が考え抜かれたサンルームとウォークスルークローゼットのある、便利な平屋間取りでした。
こんな疑問をお持ちのかた、多いですよね。
「とりあえず住宅展示場に行ってみよう」もアリですが、展示場の家は豪華すぎてリアルサイズの住宅イメージがつかめないばかりか、平屋のある展示場はほとんどありません。
わざわざ展示場に行かなくても、資料請求サイトを使えば、一度に複数社にカタログ請求が可能。自宅にいながら様々なハウスメーカー・工務店さんの魅力を比較検討できます。
詳細は平屋のカタログを一番簡単に集める方法をご覧ください。
関連記事
- 平屋のカタログを一番簡単に集める方法
- 平屋を建てる7つのメリット【2つのデメリット・間取りの具体例と作り方も解説】
- 平屋の資料請求サイト5選!【平屋カタログの集め方を徹底解説!】
- 平屋間取り図276選!【ハウスメーカー・工務店266社】
- 2LDKの平屋間取り図73選!【夫婦二人にぴったりな家】
- 【20坪台】平屋間取り図133選!【老後も安心なシンプル設計】
- 【20坪台】長方形の平屋間取り図51選!
- 【20坪台】南玄関の平屋間取り図63選!
- 【20坪台】ランドリールーム・サンルームのある平屋間取り図23選!
- 【20坪台】ウォークスルークローゼットのある平屋間取り図21選!
- 長方形の平屋間取り図87選!【細長い2LDK・3LDK・4LDKを網羅】
- 南玄関の平屋間取り図134選!【2LDK・3LDK・4LDKを網羅】
- ランドリールーム・サンルームのある平屋間取り図55選!【室内物干しで家事動線がよい家】
- ウォークスルークローゼットのある平屋間取り図47選!
- 書斎(スタディコーナー)のある平屋間取り図45選!【リモートワーク・テレワークに最適な家】
- 玄関収納・シューズクロークのある平屋間取り図164選!
- 【兵庫県】工務店の新築平屋間取り21選!
- 【和歌山県】工務店の新築平屋間取り14選!
本日も最後までお読みいただきありがとうございました。
みなさんの後悔のない家づくりの参考になれば幸いです。
これから家を建てるなら、フラットで移動や掃除がラク、子供が巣立ったあとも2階が無駄にならない平屋がおすすめです。
平屋のデメリット、2階建てとの価格の違いや、失敗しない間取りの作り方などを平屋を建てる7つのメリット【2つのデメリット・間取りの作り方も解説】にまとめました。




