【滋賀県】工務店の新築平屋間取り20選!
滋賀県を主な施工エリアとしている工務店の新築平屋間取りプランをみてみたい。
今日の記事はこういった疑問に答えます。
本記事では、滋賀県を中心に施工実績のある工務店が提案する、新築平屋間取りプランをご紹介します。
地元密着の工務店なら、その地域にあった気候、風土に合わせた家づくりが可能。
大手ハウスメーカーとは違った魅力のある平屋作りを叶えてくれます。
これから滋賀県で平屋を建てようと検討しているかたは必見です。
平屋を考え始めたときって、「まず何をすればいいんだろう」と立ち止まってしまうこと、ありますよね。 実際に平屋を建てた私も、最初は同じように感じていました。
住宅展示場に行くのもひとつの方法ですが、展示場の家って豪華すぎて、実際に建てる家のイメージとは少し違ってしまうことも。 それに、平屋を見られる展示場は意外と少ないんです。
そんなときは、無理に出かけなくても大丈夫。
資料請求サイトを使えば、気になるメーカーの平屋カタログをまとめて取り寄せられるので、家にいながら気軽に比較できます。
まずは、自宅でゆっくりくつろぎながら、届いた資料をパラパラめくってみるだけでも十分。
「こんな平屋もいいな」「こういう間取り、好きかも」なんて、少しずつ理想が見えてきます。
平屋のカタログを一番簡単に集める方法をまとめたので、気になる方はのぞいてみてください。
きっと、次の一歩が軽くなるはずです。
- 【滋賀県】工務店の新築平屋間取り20選!
- 滋賀県を主な施工エリアとしている工務店の2LDK平屋間取り
- 滋賀県を主な施工エリアとしている工務店の3LDK平屋間取り
- 【26坪】ももくりの家さんの平屋「プラン20」【ランドリールームのあるローコスト平屋】
- 【21坪】アトリエSumikaさんの平屋「BANGAROW by WOODBOX」【ロフトありでコンパクトなのにひろびろ】
- 【28坪】石友ホームさんの平屋「本開発の家」【ロフト付き子ども部屋とコートテラス】
- 華建築さんの平屋「HANA flat」【子ども部屋とリビングをつなぐウォークスルークローゼット】
- 【29坪】みんなの家さんの「みやし平屋モデルハウス」【アイアン調ハンギングバー付きランドリールーム】
- 小林住宅さんの「ワンフロアの生活 平屋タイプ」【中央にあるファミリークローゼットとランドリールーム】
- 【33坪】ヤマト住建さん平屋「中庭のある家」【ゾーニングも素晴らしいパティオの平屋】
- 【30坪】エイ・ワンホームさんの「ランドリー付き回遊動線の平屋」【ガス乾燥機付きランドリールーム】
- 【27坪】桧家住宅さんの平屋「スマート・ワン」【高い視点が気持ちいい!コミュニケーションブリッジ】
- 滋賀県を主な施工エリアとしている工務店の4LDK平屋間取り
- 滋賀県のそのほかの工務店さん一覧
- 関連記事
【滋賀県】工務店の新築平屋間取り20選!
さっそく、滋賀県を主な施工エリアとしている工務店が提案する平屋間取りプランをご紹介していきます。
滋賀県を主な施工エリアとしている工務店の2LDK平屋間取り
滋賀県を主な施工エリアとしている工務店が提案する、2LDKの平屋間取りをご紹介します。
【23坪】アーキホームライフさんの平屋【引き戸を開ければLDKとつながる和室】
![]()
![]()
出典:アーキホームライフさんの平屋ウェブサイト
アーキホームライフさんの平屋をご紹介します。
- 2LDK
- 延床面積20坪台
- 北玄関
- 玄関収納
- 和室
23坪の2LDK平屋住宅です。
玄関入って左には大きな玄関収納があります。
靴のほか、アウトドア、スポーツ用品なども収納できそうな広さが魅力的です。
ダイニングスペースの奥側には造り付けのテーブルがあり、食事はもちろんのこと、簡易的なスタディコーナーとしても活用できそうです。
リビングと和室は引き戸でつながっていて、和室の引き戸をあければ大空間が広がります。
【25坪】アートハウスさんの平屋【広大な玄関土間】
![]()
出典:アートハウスさんの平屋ウェブサイト
アートハウスさんの平屋をご紹介します。
- 2LDK
- 延床面積20坪台
- 長方形
- 北玄関
- 玄関収納(土間)
- ウォークインクローゼット
- ランドリールーム(家事室)
- パントリー
- ウッドデッキ
25坪の2LDK平屋住宅です。
一番の特徴は広大な玄関の土間スペース。
南北に長い玄関は、入って正面がすべて土間というユニークな間取りで、施主さんの暮らしに合わせて自由な使い方ができる多目的な便利スペースとなっています。
家の中も機能的で、特に洗面脱衣室の奥には洗濯機のあるランドリールーム(家事室)が広がっています。
室内干しにも十分対応できる広さがあるので、洗濯がはかどること間違いなし。
南側には長いウッドデッキも備えているので、LDKと外のつながりも楽しく、遊び心と多数の収納スペースが同居した満足度の高い平屋間取りとなっています。
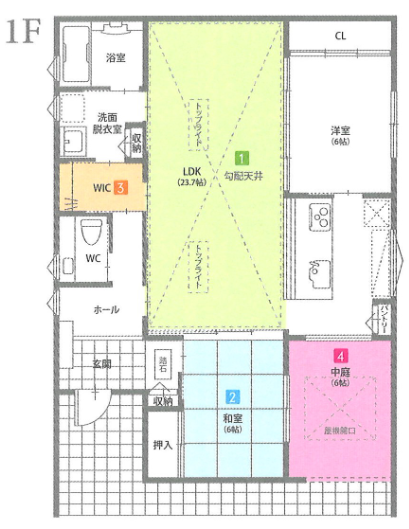
【26坪】びわこホームさんの平屋「NOA」【多目的に使える中庭インナースペース】
![]()
![]()
出典:びわこホームさんの平屋「NOA」ウェブサイト
びわこホームさんの平屋「NOA」をご紹介します。
- 2LDK
- 延床面積20坪台
- 長方形
- 南玄関
- 中庭
- ウォークスルークローゼット
- 和室
正面右側の、地窓からチラっと見える中庭が印象的な26坪の2LDK平屋住宅です。
屋根部分が開口されている中庭インナースペースがあり、バーベキューを楽しんだり、布団の外干しをしたりと多目的に使えます。
家の中に目を向けると、洗面脱衣室の前にウォークスルーできるクローゼットを備えている点が特徴的です。
朝の身支度を整える動線として最高の使い勝手を発揮することでしょう。
勾配天井、トップライトありのLDKは開放的で気持ちよく、ゆっくりくつろぎたい気分の時には隣の和室でゴロゴロするのも楽しそう。
中庭の非日常感に加えて、ウォークスルークローゼットや和室といった機能面も優れた平屋間取りとなっています。
いたや工房さんの平屋「Model N 1.0」【高い天井を活かした収納と開放感】
![]()
![]()
出典:いたや工房さんの平屋「Model N 1.0」ウェブサイト
いたや工房さんの平屋「Model N 1.0」をご紹介します。
- 2LDK
- 長方形
- 東玄関
- ウォークインクローゼット
- 玄関収納
天井高のある開放的な2LDK平屋住宅です。
平面ではなく立体で考える。という明確なコンセプトのもと、天井高を2.9m以上と高くとり、大容量の収納スペースと、豊かな光が差し込む窓をもっています。
玄関入って右手のシューズインクローゼットは、なんと天井高3.3メートル。
靴だけでなく、長尺なアウトドアグッズなども難なく収納できます。
リビングの天井も2.9mメートルあり、抜けのよい空間でリラックスした時間をすごすことができます。
二つの個室の間に大きなウォークインクローゼットもあり、高い天井高を120%活かした収納豊富な平屋間取りとなっています。
【20坪】泉北ホームさんの平屋【南側全面に広がるアウトドアリビング】
![]()
![]()
出典:泉北ホームさんの平屋ウェブサイト
泉北ホームさんの平屋をご紹介します。
- 2LDK
- 延床面積20坪台
- 長方形
- 西玄関
- ウッドデッキ
- ローコスト
シンプルで無駄のない2LDK平屋住宅です。
LDK西側の個室の扉は引き戸で、開け放てばLDKを拡張して使うことが可能。
子どもが巣立ったあとなどに、夫婦でLDKを広く使いたい場合には非常に便利な仕掛けとなっています。
南側全面に広がるテラスはアウトドアリビングとして活用でき、開放感抜群です。
建物本体価格1,622万円(税込)で建てられる点も魅力的な平屋間取りとなっています。
【21坪】Beans Home(ビーンズホーム)さんの平屋【玄関と洗面所を結ぶウォークスルークローゼット】
![]()
![]()
出典:Beans Home(ビーンズホーム)さんの平屋ウェブサイト
Beans Home(ビーンズホーム)さんの平屋をご紹介します。
- 2LDK
- 延床面積20坪台
- コの字
- 北玄関
- ウォークスルークローゼット
- 洗面所と脱衣所が別々に分かれている
便利な場所にウォークスルークローゼットのある2LDK平屋住宅です。
ウォークスルークローゼットは、玄関ホールと洗面所の間に配置されています。
脱衣所は部屋干しも可能なスペースがあるため、脱衣所で洗濯、物干しを行い、乾いた洗濯ものはそのままウォークスルークローゼットへ収納できます。
また、玄関からもアクセス可能ということで、朝の身支度にも最高の使い勝手を発揮。
洗濯と身支度の動線が非常にスムーズに流れる平屋間取りとなっています。
【31坪】ホンカさんの平屋「トゥルスク 」【フィンランド式サウナ付き】
![]()
![]()
![]()
出典:ホンカさんの平屋「トゥルスク 」ウェブサイト
ホンカさんの平屋「トゥルスク 」をご紹介します。
シンプルな切妻屋根の長方形の平屋です。
一番のユニークポイントは「サウナがある」という点です。
フィンランド式サウナを浴室の隣に備えていて、毎日自宅で思う存分サウナを楽しむことができます。
切妻屋根の広大な屋根裏を活かしたロフトスペース、大型のパントリーなど収納スペースも充実。
調湿効果のある天然木を使った木の家は、サウナとの相乗効果で、家族が末永く健康に暮らせる平屋住宅となっています。
詳細はホンカさんの平屋「トゥルスク 」間取りおすすめポイント【フィンランド式サウナ付き】で解説しています。
平屋を考え始めたときって、「まず何をすればいいんだろう」と立ち止まってしまうこと、ありますよね。 実際に平屋を建てた私も、最初は同じように感じていました。
住宅展示場に行くのもひとつの方法ですが、展示場の家って豪華すぎて、実際に建てる家のイメージとは少し違ってしまうことも。 それに、平屋を見られる展示場は意外と少ないんです。
そんなときは、無理に出かけなくても大丈夫。
資料請求サイトを使えば、気になるメーカーの平屋カタログをまとめて取り寄せられるので、家にいながら気軽に比較できます。
まずは、自宅でゆっくりくつろぎながら、届いた資料をパラパラめくってみるだけでも十分。
「こんな平屋もいいな」「こういう間取り、好きかも」なんて、少しずつ理想が見えてきます。
平屋のカタログを一番簡単に集める方法をまとめたので、気になる方はのぞいてみてください。
きっと、次の一歩が軽くなるはずです。
滋賀県を主な施工エリアとしている工務店の3LDK平屋間取り
滋賀県を主な施工エリアとしている工務店が提案する、3LDKの平屋間取りをご紹介します。
【26坪】ももくりの家さんの平屋「プラン20」【ランドリールームのあるローコスト平屋】
![]()
![]()
出典:ももくりの家さんの平屋「プラン20」ウェブサイト
ももくりの家さんの平屋「プラン20」をご紹介します。
- 3LDK
- 延床面積20坪台
- 東玄関
- 玄関収納
- 和室
- ウォークインクローゼット
- ランドリールーム
- ウッドデッキ
- 玄関手洗い
- ローコスト
機能性あふれるローコスト3LDK平屋住宅です。
建物価格、税抜き1,393万円というローコストを実現しながらも、独立したランドリールームまで完備しています。
収納付きの和室や、ウッドデッキまであり、ローコスト平屋とは思えないほど表情豊かな空間が広がります。
玄関上がってすぐの場所にミニ洗面もあるため、家族の衛生面も完璧に配慮された平屋間取りとなっています。
【21坪】アトリエSumikaさんの平屋「BANGAROW by WOODBOX」【ロフトありでコンパクトなのにひろびろ】
出典:アトリエSumikaさんの平屋「BANGAROW by WOODBOX」ウェブサイト
アトリエSumikaさんの平屋「BANGAROW by WOODBOX」をご紹介します。
- 3LDK
- 延床面積20坪台
- 東玄関
- 玄関収納
- ロフト
- ウォークインクローゼット
- 子ども部屋が最初から間仕切りされている
- 主寝室と子ども部屋が離れている
- 洗面所と脱衣所が別々に分かれている
21坪とコンパクトな3LDK平屋住宅です。
延床面積をみると小さく感じますが、勾配天井を活かした広いロフトスペースがあるなど、見た目以上に開放感のある平屋となっています。
コンパクトながら、洗面所と脱衣所が別々に分かれている、各個室に収納、クローゼットを設けているなど、機能面にも妥協はありません。
20坪ちょっとでもここまでできるのか、と思わせてくれる平山間取りとなっています。
【28坪】石友ホームさんの平屋「本開発の家」【ロフト付き子ども部屋とコートテラス】
![]()
![]()
出典:石友ホームさんの平屋「本開発の家」ウェブサイト
石友ホームさんの平屋「本開発の家」をご紹介します。
- 3LDK
- 延床面積20坪台
- 西玄関
- 中庭(テラス)
- ロフト
- 子ども部屋をあとから間仕切りできる
外からは見えないコートテラスを持つ28坪の平屋住宅です。
将来は二部屋に分けることも可能な子ども部屋は、上部がはしごで登れるロフトスペースとなっており、部屋の面積以上の広さを感じられます。
外観のシンプルさからは想像できない空間の広がりを持つ平屋間取りとなっています。
華建築さんの平屋「HANA flat」【子ども部屋とリビングをつなぐウォークスルークローゼット】
![]()
![]()
出典:華建築の平屋「HANA flat」ウェブサイト
華建築の平屋「HANA flat」をご紹介します。
- 3LDK
- 東玄関
- 玄関収納
- 洗面所と脱衣所が別々に分かれている
- 子ども部屋をあとから間仕切りできる
- 子ども部屋に収納がない
- 主寝室と子ども部屋が離れている
- ウォークスルークローゼット
多彩な収納スペースが魅力的な3LDK平屋です。
玄関を入って正面の廊下は一面の収納となっており、廊下の壁を活用した無駄のない配置。
子ども部屋に造り付けの収納がありませんが、リビングとの間にウォークスルークローゼットが設けられています。
子ども部屋の居住面積を広くとったうえに、リビングとのつながりもスムーズになる、機能的な間取りが魅力的です。
移動のためのスペースをうまく使った収納を設けているので、動線の良さと収納スペースの広さが高いレベルで共存した暮らしやすい平屋間取りとなっています。
【29坪】みんなの家さんの「みやし平屋モデルハウス」【アイアン調ハンギングバー付きランドリールーム】
![]()
出典:みんなの家さんの「みやし平屋モデルハウス」ウェブサイト
みんなの家さんの「みやし平屋モデルハウス」をご紹介します。
- 3LDK
- 延床面積20坪台
- 南玄関
- 玄関収納あり
- ウッドデッキあり
- 洗面所と脱衣所が別々に分かれている
- 子ども部屋が最初から間仕切りされている
- ウォークスルークローゼットあり
脱衣室のおしゃれなハンギングバーが魅力的な、29坪、3LDK平屋です。
内装の雰囲気とばっちり合ったアイアン調のハンギングバーは、洗濯物の室内干しのテンションが上がること間違いなし。
生活感も薄いので、お客様がいらした際にも、家の雰囲気を壊すことがありません。
洗面所と脱衣室が別々なので、脱衣室はゆとりのスペースを設けることができたので、室内干しもはかどります。
また、家の中央にはウォークスルークローゼットもあり、主寝室との動線としても活躍。
30坪を切るコンパクトさながら、機能性にとんだ平屋間取りとなっています。
詳細は【29坪】みんなの家さんの「みやし平屋モデルハウス」間取りおすすめポイント【アイアン調ハンギングバー付きランドリールーム】で解説しています。
小林住宅さんの「ワンフロアの生活 平屋タイプ」【中央にあるファミリークローゼットとランドリールーム】
![]()
![]()
出典:小林住宅さんの「ワンフロアの生活 平屋タイプ」ウェブサイト
小林住宅さんの「ワンフロアの生活 平屋タイプ」をご紹介します。
家の中央に大きなファミリークローゼットとランドリールームを持つ平屋住宅です。
ランドリールームは物干し竿3本が縦に下がる広さで、家族全員の洗濯物を余裕を持って干せます。
乾いた洗濯物は隣のファミリークローゼットにすぐに運び込めて、移動距離も最短です。
ファミリークローゼットはウォークスルータイプのため、脱衣所、ランドリールーム、玄関の3か所からアクセス可能。
洗う、干す、しまう、着るといった、衣類に関するすべての要望をスマートに叶えてくれます。
詳細は小林住宅さんの「ワンフロアの生活 平屋タイプ」間取りおすすめポイント【中央にあるファミリークローゼットとランドリールーム】で解説しています。
【33坪】ヤマト住建さん平屋「中庭のある家」【ゾーニングも素晴らしいパティオの平屋】
![]()
![]()
出典:ヤマト住建さんの「中庭のある家」ウェブサイト
ヤマト住建さんの「中庭のある家」をご紹介します。
結論から言うと、「ゾーニングも素晴らしい中庭のある平屋住宅」でした。
- プライベートな中庭空間
- 中庭を間に挟んだ絶妙なゾーン分離
中庭が実はLDK水回りと個室を分ける役目も果たしている、とても機能的な平屋です。
詳細は【33坪】ヤマト住建さんの平屋「中庭のある家」間取り2つのおすすめポイント【ゾーニングが素晴らしいおしゃれなパティオ付き】で解説しています。
【30坪】エイ・ワンホームさんの「ランドリー付き回遊動線の平屋」【ガス乾燥機付きランドリールーム】
![]()
![]()
出典:エイワンホームさんの「ランドリー付き回遊動線の平屋」ウェブサイト
エイワンホームさんの「ランドリー付き回遊動線の平屋」をご紹介します。
エイワンホームさんの「ランドリー付き回遊動線の平屋」の特性
- 3LDK
- 延床面積30坪台
- 西玄関
- ランドリールームあり
- 洗面所と脱衣所が別々に分かれている
- 子ども部屋をあとから間仕切りできる
- 玄関収納あり
- 回遊動線
脱衣室と別の独立したランドリールームを持つ平屋住宅です。
ガス乾燥機を使って洗濯物を乾かすことが最初から想定されています。
ランドリールームを出てすぐのところにファミリークロークもあり、最短距離で洗濯が片付く家事楽な平屋間取りとなっています。
キッチンを中心としてグルっと回れる回遊動線になっている点もユニークなポイントです。
詳細はエイワンホームさんの「ランドリー付き回遊動線の平屋」間取りおすすめポイント【ガス乾燥機付きランドリールーム】で解説しています。
【27坪】桧家住宅さんの平屋「スマート・ワン」【高い視点が気持ちいい!コミュニケーションブリッジ】
![]()
![]()
出典:桧家住宅さんの平屋住宅「スマート・ワン」ウェブサイト
桧家住宅さんの3LDK平屋注文住宅「スマート・ワン」をご紹介します。
結論から言うと、「高い視点が気持ちいい書斎スペースがある平屋住宅」でした。
- 高い視点が気持ちいい!「コミュニケーションブリッジ」
- 固定階段方式の10帖の屋根裏収納
- 勾配天井で開放感抜群のリビング
ユニークな書斎スペースがあるのに全体のバランスが取れた住みやすい間取りの平屋住宅です。
詳細は桧家住宅の平屋「スマート・ワン」の間取り3つのおすすめポイント【高い視点が気持ちいい!コミュニケーションブリッジのある3LDK注文住宅】で解説しています。
平屋を考え始めたときって、「まず何をすればいいんだろう」と立ち止まってしまうこと、ありますよね。 実際に平屋を建てた私も、最初は同じように感じていました。
住宅展示場に行くのもひとつの方法ですが、展示場の家って豪華すぎて、実際に建てる家のイメージとは少し違ってしまうことも。 それに、平屋を見られる展示場は意外と少ないんです。
そんなときは、無理に出かけなくても大丈夫。
資料請求サイトを使えば、気になるメーカーの平屋カタログをまとめて取り寄せられるので、家にいながら気軽に比較できます。
まずは、自宅でゆっくりくつろぎながら、届いた資料をパラパラめくってみるだけでも十分。
「こんな平屋もいいな」「こういう間取り、好きかも」なんて、少しずつ理想が見えてきます。
平屋のカタログを一番簡単に集める方法をまとめたので、気になる方はのぞいてみてください。
きっと、次の一歩が軽くなるはずです。
滋賀県を主な施工エリアとしている工務店の4LDK平屋間取り
滋賀県を主な施工エリアとしている工務店が提案する、4LDKの平屋間取りをご紹介します。
【34坪】ゼロホームさんの平屋「PLAN1」【日当たりのよいLDKとつながる裏庭】
出典:ゼロホームさんの平屋「PLAN1」ウェブサイト
ゼロホームさんの平屋「PLAN1」をご紹介します。
- 4LDK
- 延床面積30坪台
- 西玄関
- 玄関収納
- パントリー
- タタミコーナー
- ウォークインクローゼット
- スタディコーナー
- 子ども部屋をあとから間仕切りできる
- 子ども部屋と主寝室が離れている
33坪の4LDK平屋住宅です。
一番の特徴は南側。
北玄関なので、玄関入って反対側にLDKを配置。
LDKの奥には広い裏庭を設けているので、LDKの窓を開け放てば、裏庭とつながる広大なアウトドアリビングとして使うことができます。
子ども部屋は3つ用意されていて、うち二つはあとから間仕切りできる構造のため、家族の人数に合わせて使い方の調整が可能となっています。
【29坪】クライツさんの平屋「Style04」【廊下レスで無駄のない間取り】
![]()
出典:クライツさんの平屋「Style04」ウェブサイト
クライツさんの平屋「Style04」をご紹介します。
- 4LDK
- 延床面積20坪台
- 正方形
- 南玄関
- 和室
- ウッドデッキ
シンプルな正方形の29坪4LDK平屋住宅です。
玄関ポーチも兼ねたウッドデッキが南面に広がり、訪れた人を歓迎する雰囲気に包まれています。
30坪に満たない平屋でコンパクトですが、和室ありの4LDK間取りを実現。
無駄な廊下スペースを徹底的に省いて個室を配置できたからこそ可能となった間取りです。
家族の気配を常に身近に感じていたいかたに特におすすめな平屋間取りとなっています。
詳細は【37坪】パパまるハウスさんの平屋 間取り3つのおすすめポイント【玄関すぐのウォークインクローゼット】で解説しています。
【32坪】ジブンハウスさんの平屋「1211F SCANDIA」【高いデザインと低コストを両立!】
![]()
![]()
出典:ジブンハウスさんの平屋住宅「1211F SCANDIA」ウェブサイト
ジブンハウスさんの平屋住宅「1211F SCANDIA」をご紹介します。
結論から言うと、「デザイン性が高いバランスの取れた平屋住宅」でした。
- 大きなシューズクローク
- 理想的なトイレの配置
- 収納を備えた寝室、和室、子ども部屋
- 作業スペースの広い対面式I型キッチン
- ゆったりとくつろげるウッドデッキ
住む人を選ばない、かつ、高いデザイン性と低コストを両立した平屋住宅です。
2階建てしか考えていなかった人も、みれば建てたくなるような平屋かも。。。
詳細はジブンハウスさんの平屋「1211F SCANDIA」間取り5つのおすすめポイント【高いデザインと低コストを両立した4LDK注文住宅】で解説しています。
【39坪】パパまるハウスさんの平屋【玄関すぐのウォークインクローゼット】
![]()
出典:パパまるハウスさんの平屋ウェブサイト
パパまるハウスさんの平屋をご紹介します。
結論から言うと、「収納スペースが大容量かつ斬新な配置の平屋住宅」でした。
- 4LDK
- 延床面積30坪台
- ウォークスルークローゼット
- ウォークインクローゼット
- 和室
- 書斎(ママコーナー)
- 屋根裏収納
- ウッドデッキ
斬新な玄関すぐのウォークスルークローゼット、固定階段方式の18帖もある屋根裏収納、家事全般の中継ステーション「ママコーナー」など、機能的な間取りが満載。
収納スペースが非常にたくさんあるのと同時に、その配置も斬新さを感じる平屋住宅です。
詳細は【37坪】パパまるハウスさんの平屋 間取り3つのおすすめポイント【玄関すぐのウォークインクローゼット】で解説しています。
平屋を考え始めたときって、「まず何をすればいいんだろう」と立ち止まってしまうこと、ありますよね。 実際に平屋を建てた私も、最初は同じように感じていました。
住宅展示場に行くのもひとつの方法ですが、展示場の家って豪華すぎて、実際に建てる家のイメージとは少し違ってしまうことも。 それに、平屋を見られる展示場は意外と少ないんです。
そんなときは、無理に出かけなくても大丈夫。
資料請求サイトを使えば、気になるメーカーの平屋カタログをまとめて取り寄せられるので、家にいながら気軽に比較できます。
まずは、自宅でゆっくりくつろぎながら、届いた資料をパラパラめくってみるだけでも十分。
「こんな平屋もいいな」「こういう間取り、好きかも」なんて、少しずつ理想が見えてきます。
平屋のカタログを一番簡単に集める方法をまとめたので、気になる方はのぞいてみてください。
きっと、次の一歩が軽くなるはずです。
滋賀県のそのほかの工務店さん一覧
下記は、間取りプランの掲載がなく、本記事でご紹介できなかった滋賀県で施工実績のある工務店さんの一覧です。
さらに、LIFULL HOME’Sも使えば、千葉県で施工可能な大手ハウスメーカーのカタログも一括で取り寄せることができます。
わざわざ住宅展示場に足を運ばなくてもよい点がメリット大です。
SUUMO、LIFULL HOME’Sでカタログを取り寄せる手順の詳細は、平屋のカタログを一番簡単に集める方法で解説しています。
こんな疑問をお持ちのかた、多いですよね。
「とりあえず住宅展示場に行ってみよう」もアリですが、展示場の家は豪華すぎてリアルサイズの住宅イメージがつかめないばかりか、平屋のある展示場はほとんどありません。
わざわざ展示場に行かなくても、資料請求サイトを使えば、一度に複数社に資料請求が可能。自宅にいながら様々な住宅メーカーの魅力を比較検討できます。
詳細は平屋のカタログを一番簡単に集める方法をご覧ください。
関連記事
本日も最後までお読みいただきありがとうございました。
みなさんの後悔のない家づくりの参考になれば幸いです。
これから家を建てるなら、フラットで移動や掃除がラク、子供が巣立ったあとも2階が無駄にならない平屋がおすすめです。
平屋のデメリット、2階建てとの価格の違いや、失敗しない間取りの作り方などを平屋を建てる7つのメリット【2つのデメリット・間取りの作り方も解説】にまとめました。















