【鳥取県】工務店の新築平屋間取り8選!
鳥取県を主な施工エリアとしている工務店の新築平屋間取りプランをみてみたい。
今日の記事はこういった疑問に答えます。
本記事では、鳥取県を主な施工エリアとしている工務店が提案する、平屋間取りプランをご紹介します。
地元密着の工務店なら、その地域にあった気候、風土に合わせた家づくりが可能。
大手ハウスメーカーとは違った魅力のある平屋作りを叶えてくれます。
これから鳥取県で平屋を建てようと検討しているかたは必見です。
鳥取県も含む、日本全国で展開しているハウスメーカーの平屋間取りについて知りたいかたは、以下の記事もあわせてご覧ください。
こんな疑問をお持ちのかた、多いですよね。
「とりあえず住宅展示場に行ってみよう」もアリですが、展示場の家は豪華すぎてリアルサイズの住宅イメージがつかめないばかりか、平屋のある展示場はほとんどありません。
わざわざ展示場に行かなくても、資料請求サイトを使えば、一度に複数社にカタログ請求が可能。自宅にいながら様々なハウスメーカー・工務店さんの魅力を比較検討できます。
詳細は平屋のカタログを一番簡単に集める方法をご覧ください。
【鳥取県】工務店の新築平屋間取り8選!
さっそく、鳥取県を主な施工エリアとしている工務店が提案する平屋間取りプランをご紹介していきます。
鳥取県を主な施工エリアとしている工務店が提案する2LDKの平屋間取り
鳥取県を主な施工エリアとしている工務店が提案する、2LDKの平屋間取りをご紹介します。
ホンカさんの平屋「トゥルスク 」【フィンランド式サウナ付き】
![]()
![]()
![]()
出典:ホンカさんの平屋「トゥルスク 」ウェブサイト
ホンカさんの平屋「トゥルスク 」をご紹介します。
- 2LDK
- 延床面積20坪台
- 北玄関
- 長方形
- ロフトあり
- パントリーあり
シンプルな切妻屋根の長方形の平屋です。
フィンランド式サウナを浴室の隣に備えていて、毎日自宅で思う存分サウナを楽しむことができます。
切妻屋根の広大な屋根裏を活かしたロフトスペース、大型のパントリーなど収納スペースも充実。
調湿効果のある天然木を使った木の家は、サウナとの相乗効果で、家族が末永く健康に暮らせる平屋住宅となっています。
詳細はホンカさんの平屋「トゥルスク 」間取りおすすめポイント【フィンランド式サウナ付き】で解説しています。
【42坪】ライフデザイン・カバヤさんの「自然と繋がる憩いの平屋」【南北採光の開放的LDK】
![]()
![]()
出典:ライフデザイン・カバヤさんの「自然と繋がる憩いの平屋」ウェブサイト
ライフデザイン・カバヤさんの「自然と繋がる憩いの平屋」をご紹介します。
- 2LDK
- 延床面積40坪台
- 長方形
- 南玄関
- 和室あり
- 書斎あり
- アイランドキッチンあり
南北の2面採光で明るいLDKをもつ平屋住宅です。
垂木現しの勾配天井も開放感抜群です。
書斎や和室も完備していて、LDKの美しさだけでなく、機能性にも優れている平屋間取りとなっています。
詳細はライフデザイン・カバヤさんの「自然と繋がる憩いの平屋」間取りおすすめポイント【南北採光の開放的LDK】で解説しています。
こんな疑問をお持ちのかた、多いですよね。
「とりあえず住宅展示場に行ってみよう」もアリですが、展示場の家は豪華すぎてリアルサイズの住宅イメージがつかめないばかりか、平屋のある展示場はほとんどありません。
わざわざ展示場に行かなくても、資料請求サイトを使えば、一度に複数社にカタログ請求が可能。自宅にいながら様々なハウスメーカー・工務店さんの魅力を比較検討できます。
詳細は平屋のカタログを一番簡単に集める方法をご覧ください。
鳥取県を主な施工エリアとしている工務店が提案する3LDKの平屋間取り
鳥取県を主な施工エリアとしている工務店が提案する、3LDKの平屋間取りをご紹介します。
【30坪】CLAVISさんの「鳥取モデルハウス 平屋」【2つあるトイレと家事がはかどる北側一直線の水回り】
出典:CLAVISさんの鳥取モデルハウス平屋ウェブサイト
CLAVISさんの「鳥取モデルハウス 平屋」をご紹介します。
- 3LDK
- 延床面積30坪台
- 南玄関
- 洗面所と脱衣所が別々に分かれている
- 子ども部屋が最初から間仕切りされている
- 子ども部屋に収納がない
- 玄関収納あり
- パントリーあり
- トイレが2つ
スタイリッシュな3LDK平屋住宅です。
トイレ、洗面所、脱衣所、浴室が一直線に並んだ使いやすい水回りが特徴的です。
キッチンからもアクセス可能なので、家事がはかどる動線を実現しています。
キッチンの奥には大容量3帖のパントリーも備えていて、生活感がでないLDKとなっている点も魅力的です。
平屋としては珍しくトイレが2つあるため、主寝室や子ども部屋からもトイレが近く就寝時に便利な間取りとなっています。
クローバー住工房さんの平屋「PREMIERE」【ひろびろ脱衣ランドリーとファミリークローゼット】
![]()
![]()
出典:クローバー住工房さんの平屋「PREMIERE」ウェブサイト
クローバー住工房さんの平屋「PREMIERE」をご紹介します。
- 3LDK
- 中庭(コの字)
- 南玄関
- ランドリールームあり
- 洗面所と脱衣所が別々に分かれている
- 子ども部屋が最初から間仕切りされている
- 玄関収納あり
- ウォークスルークローゼットあり
コの字型の中庭を持つ3LDK平屋住宅です。
浴室の手前に、室内物干しもこなす、ひろびろとした脱衣ランドリールームを備えています。
LDKと脱衣ランドリーのあいだに設けられたファミリークローゼットはウォークスルー構造となっているので、朝の身支度動線がスムーズです。
独立した洗面所もあり、あらゆるシーンで動線の渋滞が発生しない使い勝手の良い平屋間取りとなっています。
【26坪】ネイチャーリトリートさんの平屋【キャンプ用品もラクラク収納可能なEarth Storage】
![]()
![]()
出典:ネイチャーリトリートさんの平屋ウェブサイト
ネイチャーリトリートさんの平屋をご紹介します。
- 3LDK
- 延床面積20坪台
- L字形
- 南玄関
- 洗面所と脱衣所が別々に分かれている
- 子ども部屋が最初から間仕切りされている
- 玄関収納あり
- パントリーあり
- ウォークインクローゼットあり
- ウッドデッキあり
- 主寝室と子ども部屋が離れている
L字形の3LDK平屋住宅です。
一番の特徴は玄関収納。
シューズクロークとは別に、大きな面積の「Earth Storage」と名付けられた玄関収納スペースがあります。
キャンプ用品など、大物のアイテムもラクラク納める収納力は、アウトドアの趣味を持つかたには最高の使い勝手を発揮するでしょう。
26坪とコンパクトながら洗面所が独立しているなど、細かい部分まで配慮された平屋間取りとなっています。
【30坪】エイ・ワンホーム(A-1 home)さんの「ランドリー付き回遊動線の平屋」【ガス乾燥機付きランドリールーム】
![]()
![]()
出典:エイ・ワンホーム(A-1 home)さんの「ランドリー付き回遊動線の平屋」ウェブサイト
エイ・ワンホーム(A-1 home)さんの「ランドリー付き回遊動線の平屋」をご紹介します。
エイ・ワンホーム(A-1 home)さんの「ランドリー付き回遊動線の平屋」の特性
- 3LDK
- 延床面積30坪台
- 西玄関
- ランドリールームあり
- 洗面所と脱衣所が別々に分かれている
- 子ども部屋をあとから間仕切りできる
- 玄関収納あり
- 回遊動線
脱衣室と別の独立したランドリールームを持つ平屋住宅です。
ガス乾燥機を使って洗濯物を乾かすことが最初から想定されています。
ランドリールームを出てすぐのところにファミリークロークもあり、最短距離で洗濯が片付く家事楽な平屋間取りとなっています。
キッチンを中心としてグルっと回れる回遊動線になっている点もユニークなポイントです。
詳細はエイ・ワンホーム(A-1 home)さんの「ランドリー付き回遊動線の平屋」間取りおすすめポイント【ガス乾燥機付きランドリールーム】で解説しています。
こんな疑問をお持ちのかた、多いですよね。
「とりあえず住宅展示場に行ってみよう」もアリですが、展示場の家は豪華すぎてリアルサイズの住宅イメージがつかめないばかりか、平屋のある展示場はほとんどありません。
わざわざ展示場に行かなくても、資料請求サイトを使えば、一度に複数社にカタログ請求が可能。自宅にいながら様々なハウスメーカー・工務店さんの魅力を比較検討できます。
詳細は平屋のカタログを一番簡単に集める方法をご覧ください。
鳥取県を主な施工エリアとしている工務店が提案する4LDKの平屋間取り
鳥取県を主な施工エリアとしている工務店が提案する、4LDKの平屋間取りをご紹介します。
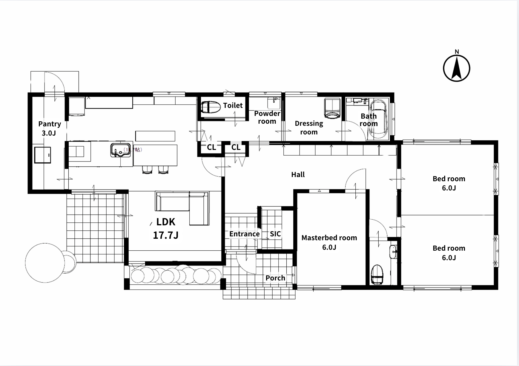
【32坪】ジブンハウスさんの平屋「1211F SCANDIA」【高いデザインと低コストを両立!】
![]()
![]()
出典:ジブンハウスさんの平屋住宅「1211F SCANDIA」ウェブサイト
ジブンハウスさんの平屋住宅「1211F SCANDIA」をご紹介します。
結論から言うと、「デザイン性が高いバランスの取れた平屋住宅」でした。
- 大きなシューズクローク
- 理想的なトイレの配置
- 収納を備えた寝室、和室、子ども部屋
- 作業スペースの広い対面式I型キッチン
- ゆったりとくつろげるウッドデッキ
住む人を選ばない、かつ、高いデザイン性と低コストを両立した平屋住宅です。
2階建てしか考えていなかった人も、みれば建てたくなるような平屋かも。。。
詳細はジブンハウスさんの平屋「1211F SCANDIA」間取り5つのおすすめポイント【高いデザインと低コストを両立した4LDK注文住宅】で解説しています。
【41坪】アート建工さんの「スキップフロアのある平屋」【眺めの良い書斎とドライルーム】
![]()
![]()
出典:アート建工さんの「スキップフロアのある平屋」ウェブサイト
アート建工さんの「スキップフロアのある平屋」をご紹介します。
- 4LDK
- 延床面積40坪台
- 長方形
- 南玄関
- 子ども部屋が最初から間仕切りされている
- 玄関収納あり
- ウッドデッキあり
- ウォークインクローゼットあり
- 書斎あり
- 和室あり
- ランドリールームあり
長方形の中にすべての機能を詰め込んだともいえる平屋住宅。
洗濯効率が爆上がりのダブルアクセス可能なドライルーム、スキップフロアで60cm高い場所にある書斎など、暮らしを豊かにする工夫が目白押しの平屋間取りとなっています。
詳細はアート建工さんの「スキップフロアのある平屋」間取り2つのおすすめポイント【眺めの良い書斎とドライルーム】で解説しています。
こんな疑問をお持ちのかた、多いですよね。
「とりあえず住宅展示場に行ってみよう」もアリですが、展示場の家は豪華すぎてリアルサイズの住宅イメージがつかめないばかりか、平屋のある展示場はほとんどありません。
わざわざ展示場に行かなくても、資料請求サイトを使えば、一度に複数社にカタログ請求が可能。自宅にいながら様々なハウスメーカー・工務店さんの魅力を比較検討できます。
詳細は平屋のカタログを一番簡単に集める方法をご覧ください。
鳥取県のそのほかの工務店さん一覧(11社)
下記は、ウェブサイトに平屋の間取りプランの掲載がなかったので本記事でご紹介できなかった、鳥取県で施工実績のある工務店さんの一覧になります。
SUUMOを利用すれば、下記も含めた本記事でご紹介したすべての工務店さんのカタログを一括で集められます。
SUUMOでカタログを取り寄せる手順の詳細は、平屋のカタログを一番簡単に集める方法で解説しています。
| 工務店名 | 公式サイトURL |
|---|---|
| みやけ工務店 | https://miyake-web.com/ |
| R+house | https://www.r-plus-house.com/tottori |
| メープルホームズ | https://okayama-nakaokensetsu.com/ |
| ひらぎの | https://www.hiragino.com/ |
| 無添加住宅 | https://www.mutenkahouse.co.jp/agency/pref/31 |
| DAIKO | https://m-daiko.com/ |
| ヤマタホーム | https://yamatahome.com/ |
| ココスム | https://lp.coco-sumu.jp/cocosumu |
| ウッズカンパニー | https://www.woods-company.com/ |
| 今井産業 | https://www.imai-corp.co.jp/ |
| 百年住宅西日本 | https://www.wpc100.co.jp/company/ |
関連記事
本日も最後までお読みいただきありがとうございました。
みなさんの後悔のない家づくりの参考になれば幸いです。
これから家を建てるなら、フラットで移動や掃除がラク、子供が巣立ったあとも2階が無駄にならない平屋がおすすめです。
平屋のデメリット、2階建てとの価格の違いや、失敗しない間取りの作り方などを平屋を建てる7つのメリット【2つのデメリット・間取りの作り方も解説】にまとめました。








