【28坪】タカシンホームさんの平屋 間取りおすすめポイント【23.9帖のひろびろリビング】
今日の記事はこういった疑問に答えます。
実際に平屋を建てた私が、タカシンホームさんの平屋の間取りを中心にチェックしてみました。
結論から言うと、「畳コーナーもある23.9帖もの広々リビングが快適な平屋住宅」でした。
タカシンホームさんの平屋のおすすめ間取りポイントは下記になります。
これから平屋を建てる予定のかたは、事例のひとつとしてぜひ参考にしてみてください。
こんな疑問をお持ちのかた、多いですよね。
「とりあえず住宅展示場に行ってみよう」もアリですが、展示場の家は豪華すぎてリアルサイズの住宅イメージがつかめないばかりか、平屋のある展示場はほとんどありません。
わざわざ展示場に行かなくても、資料請求サイトを使えば、一度に複数社にカタログ請求が可能。自宅にいながら様々なハウスメーカー・工務店さんの魅力を比較検討できます。
詳細は平屋のカタログを一番簡単に集める方法をご覧ください。
タカシンホームさんの平屋の外観と間取り図
タカシンホームさんの平屋の間取り図をご紹介します。
![]()
![]()
出典:タカシンホームさんの平屋ウェブサイト
タカシンホームさんの平屋の特性は以下のとおりです。
- 3LDK
- 延床面積20坪台
- 東玄関
- 玄関収納あり
- リビング収納あり
- ウォークインクローゼットあり
- 子ども部屋が最初から間仕切りされている
- 主寝室と子ども部屋が離れている
- タタミコーナーあり
タカシンホームさんの平屋の気になる間取りおすすめポイントをチェック!
タカシンホームさんの平屋の気になる間取りをピックアップ。
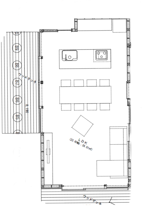
23.9帖のひろびろリビング
![]()
出典:タカシンホームさんの平屋ウェブサイト
タカシンホームさんの平屋は、なんといってもリビングが特徴的。
23.9帖という、28坪の平屋としては最大級に広いといっても過言ではない、ひろびろとしたリビングが広がっています。
リビングの奥は中心が畳コーナーというユニークなスペース。
手前側のソファーでは、ゆっくりとテレビを鑑賞する場としての機能が備わっています。
奥の畳コーナーは、子どもが遊ぶにはベストと言ってもよい場所にあります。
畳ならフローリングの床よりも柔らかいので、子どもが暴れてもケガをしにくいというメリットがあります。
また、フローリングだとそのまま座って遊ぶにはちょっとお尻が冷えてしまいそうなイメージですが、畳であれば適度な温かさとクッション性のおかげで、子どもの安心して座って遊ぶことができます!
23.9帖もあるので、男のコが多少暴れまくっても問題ありません!
そして、畳コーナーのさらに奥には収納スペースも備わっています。
子どものおもちゃを入れておくには最適ですね!
家のなかでもリビングは人が一番集まってくる場所で、起きているときは最も長い時間を過ごす場所。
平屋で快適に暮らせるかどうかは、まさにリビングが鍵をにぎっているといっても過言ではありません。
タカシンホームさんの平屋なら、23.9帖のひろびろリビング、畳に寝転がれる自由さで、家族みんなで楽しい時間が過ごせることでしょう。
我が家のリビングもひろびろ。とても快適に子どもが遊びます!
我が家のリビングも、タカシンホームさんとほぼ同じ23.6帖。
広くて、子どもが軽くサッカーもできるほどです。
リビングが快適なので、家族も自然とリビングでくつろぐ時間が長くなります。
ダイニングテーブルも大きめにしたので、子どもがお絵描きしたり、アイロンがけなどにも重宝しますね!
我が家の一番のお気に入り空間は、ダントツでリビングになります。
ただ、タカシンホームさんの平屋のリビングをみてうらやましいと思った点がひとつあります。
それは畳コーナー奥の収納スペースです。
我が家のリビングにはテレビ台のところくらいしか収納がないため、子どものおもちゃがまったくはいりきらず、リビング内のいたるところに散乱しています・・。
リビングにもう少し収納があれば・・・というのは我が家の後悔ポイントのひとつとなりました。
小さなお子さんがいるご家庭で、これから平屋を建てるかたは、タカシンホームさんの平屋のように、壁一面あるくらい大きなリビング収納をつくることをおすすめします。
リビングは人が集まると同時に、あらゆる物も集まってくる場所です。
収納はある程度の大きさを最初から確保しておいたほうが、いつも片付いたリビングで暮らせると思います。
タカシンホームさんの間取り以外の特徴
タカシンホームさんの間取り以外の特徴をご紹介します。
オーナーズクラブお客様専用アプリ
![]()
出典:タカシンホームさんの平屋ウェブサイト
タカシン・ホームさんのオーナーズクラブは、なんと専用のスマートフォンアプリが用意されています。
アプリから、365日、住まいの悩みを問い合わせるこたとが可能です。
専用の電話窓口を用意している工務店さんは見かけますが、専用のオーナーズクラブアプリがある工務店さんは、なかなかないのではないでしょうか。
お客様専用アプリの存在は、家を建てたあとのアフターサポートを重要と考えている証。
タカシンホームさんなら、家で困りごとが起こったときにアプリですぐにチェックできて安心ですね!
【まとめ】広々リビングと畳と収納が秀逸な平屋住宅
タカシンホームさんの平屋の気になる間取りのポイントをチェックしてみました。
以上をまとめると、タカシンホームさんの平屋は、特に以下のかたにおすすめです!
- リビングは最も長く過ごすので、できるだけ広く快適にしたい。
- 和室はいらないが、畳は好きなので、畳コーナーをどこかに取り入れてほしい。
- リビングには子どもが使うものなどをまとめて入れておける収納がほしい。
タカシンホームさんの平屋は、28坪の中に23.9帖もの大きなリビング&畳コーナーがあって、いつでも快適な家時間を過ごせる平屋間取りでした。
こんな疑問をお持ちのかた、多いですよね。
「とりあえず住宅展示場に行ってみよう」もアリですが、展示場の家は豪華すぎてリアルサイズの住宅イメージがつかめないばかりか、平屋のある展示場はほとんどありません。
わざわざ展示場に行かなくても、資料請求サイトを使えば、一度に複数社にカタログ請求が可能。自宅にいながら様々なハウスメーカー・工務店さんの魅力を比較検討できます。
詳細は平屋のカタログを一番簡単に集める方法をご覧ください。
関連記事
- 平屋のカタログを一番簡単に集める方法
- 平屋を建てる7つのメリット【2つのデメリット・間取りの具体例と作り方も解説】
- 平屋の資料請求サイト5選!【平屋カタログの集め方を徹底解説!】
- 平屋間取り図276選!【ハウスメーカー・工務店266社】
- 3LDKの平屋間取り図148選!
- 【20坪台】平屋間取り図133選!【老後も安心なシンプル設計】
- 【20坪台】東玄関の平屋間取り図27選!
- 東玄関の平屋間取り図49選!【気持ちのよい朝日を浴びて出かけられる家】
- 子ども部屋が最初から間仕切りされている平屋間取り図107選!
- 主寝室と子ども部屋が離れている平屋間取り図93選!
- 和室・畳コーナーのある平屋間取り図96選!
- ウォークインクローゼットのある平屋間取り図145選!
- リビング収納のある平屋間取り図45選!【ないと家が散らかりやすい?】
- 【広島県】工務店の新築平屋間取り19選!
本日も最後までお読みいただきありがとうございました。
みなさんの後悔のない家づくりの参考になれば幸いです。
これから家を建てるなら、フラットで移動や掃除がラク、子供が巣立ったあとも2階が無駄にならない平屋がおすすめです。
平屋のデメリット、2階建てとの価格の違いや、失敗しない間取りの作り方などを平屋を建てる7つのメリット【2つのデメリット・間取りの作り方も解説】にまとめました。




